Sallevvej 33A, 4622 Havdrup

Charmende længehus med spændende planløsning

Denne étplansvilla forener klassiske detaljer, nutidig funktionalitet og et køkken, der skal opleves. 

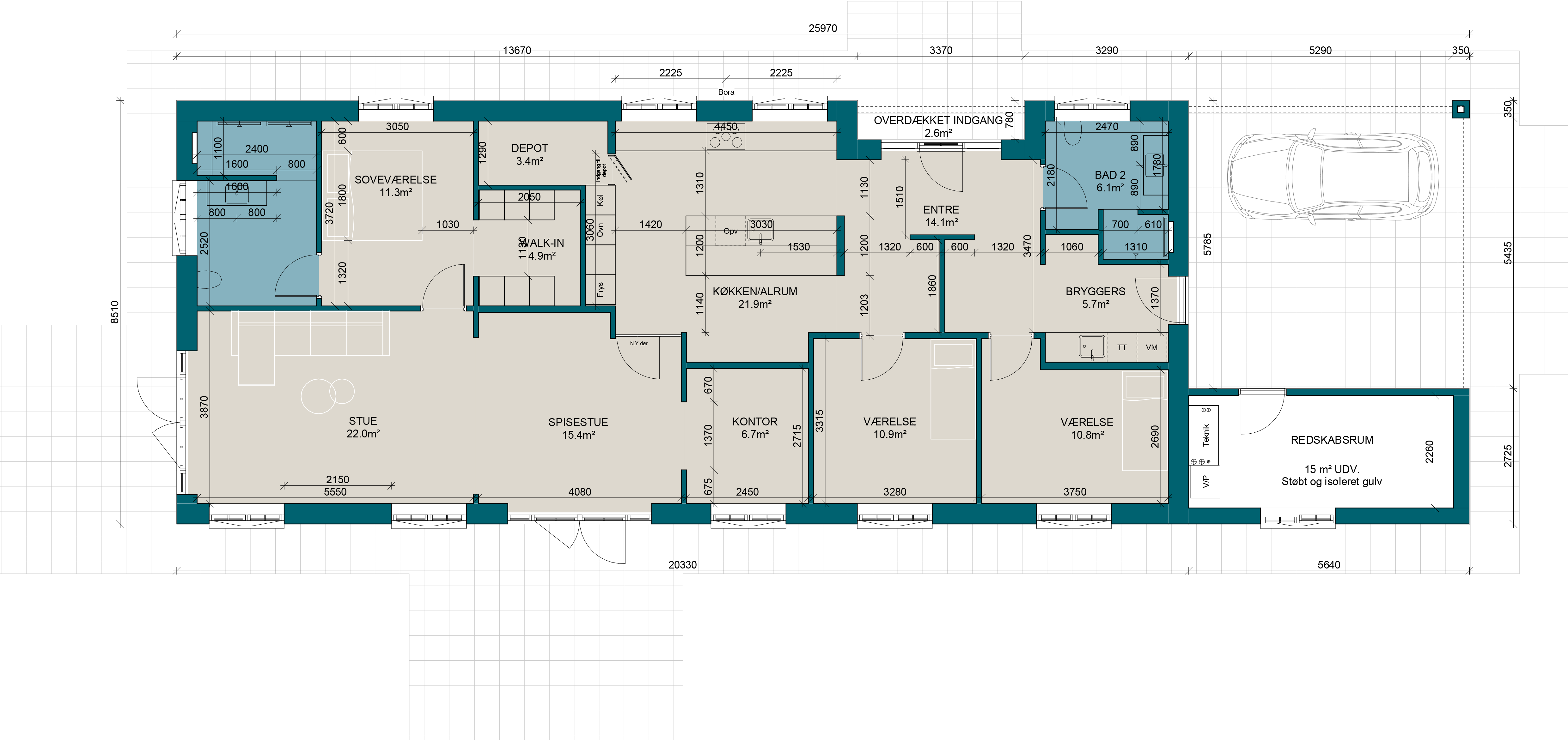
Huset er opført som et klassisk længehus med afvalmede gavle – en enkel husform, der giver stor frihed i indretningen og disponeringen af rummene. Resultatet er her en bolig, der overrasker indenfor med en let utraditionel planløsning og en stemning, der føles både moderne og charmerende.

Indenfor finder man blandt andet gennemgående skrålofter, ovenlys og elegante newyorker-døre med sprossede glaspartier. Sammen med formpressede inventarlåger skaber det et både hyggeligt og nutidigt udtryk. Lysindfaldet er generøst, og rummene føles åbne og imødekommende. Vinduer med lav brystning giver masser af udsyn og lys. 

Et overdækket indgangsparti fører ind i en rummelig entré, der er opdelt af en skillevæg med integreret siddebænk på den ene side og en praktisk niche til sko/overtøj på den anden.

Køkkenet ligger for sig selv, hvilket er en sjælden egenskab i dag. Her er der kræset for detaljerne med skrålofter, ovenlys, god bordplads, vinkøleskab, stor køkkenø og bordemhætte. Et stort og praktisk depot med skjult indgang fuldender køkkenet, som er skabt til madglæde og fællesskab.

Spisestue og opholdsstue ligger i naturlig forlængelse af hinanden og har åben forbindelse til et mindre kontor, der også vil være ideelt som legerum, hvis du har små børn. Fra stuen er der adgang til en rolig og privat forældreafdeling med walk-in-closet og et stort badeværelse med dobbeltbruser.


Kig forbi, og oplev dette spændende hus i et veletableret villakvarter i Havdrup. 

 

Åbent hus på søndag kl. 13-15

Huset er til salg for 6.195.000 kr.

Fakta

  • Længehus
  • Valmtag med 30 cm udhæng
  • Boligareal:  170  kvm
  • Grund:  798  kvm
  • Carport:  33  kvm
  • Overdækket indgang
  • Mursten: EW2135 White Bonasus
  • Tagbeklædning: Sorte betontagsten
  • Vinduer: Rationel Formaplus Premium træ/alu
  • Vægge: Filt
  • Gulve: Akustik Designkork Oxford Oak m. TimberPro
  • Walk-in
  • Ovenlysvinduer
  • Opvarmning: Luft/vand

33 billeder

Oplev vores udstillingshuse i weekenden

Og find ud af, hvilke løsninger du ikke kan leve uden i dit næste hus.

Calculator App Streamline Icon: https://streamlinehq.com

Hvad koster det at bygge et nyt hus?

Dit nye hus behøver ikke at koste en bondegård. Hvis du gerne vil have et fingerpeg om prisen, er vores priseksempler en god hjælp. 

Pencil Streamline Icon: https://streamlinehq.com

Sådan tegner vi det rigtige hus til jer

Vi bygger huse hver dag og har gjort det i årevis. Al den erfaring og viden om best practice bringer vi i spil, når vi tegner dit hus. 

Skal vi mødes til en snak om mulighederne?

Så book et uforpligtende møde med en af vores byggerådgivere. Du behøver ikke have styr på det hele endnu. Vi brygger en kop kaffe, taler om jeres ønsker og finder ud af, hvordan Milton kan hjælpe jer med husdrømmen.