Ræven 1, 9530 Støvring

Moderne og funktionel familiebolig med forskudt vinkel

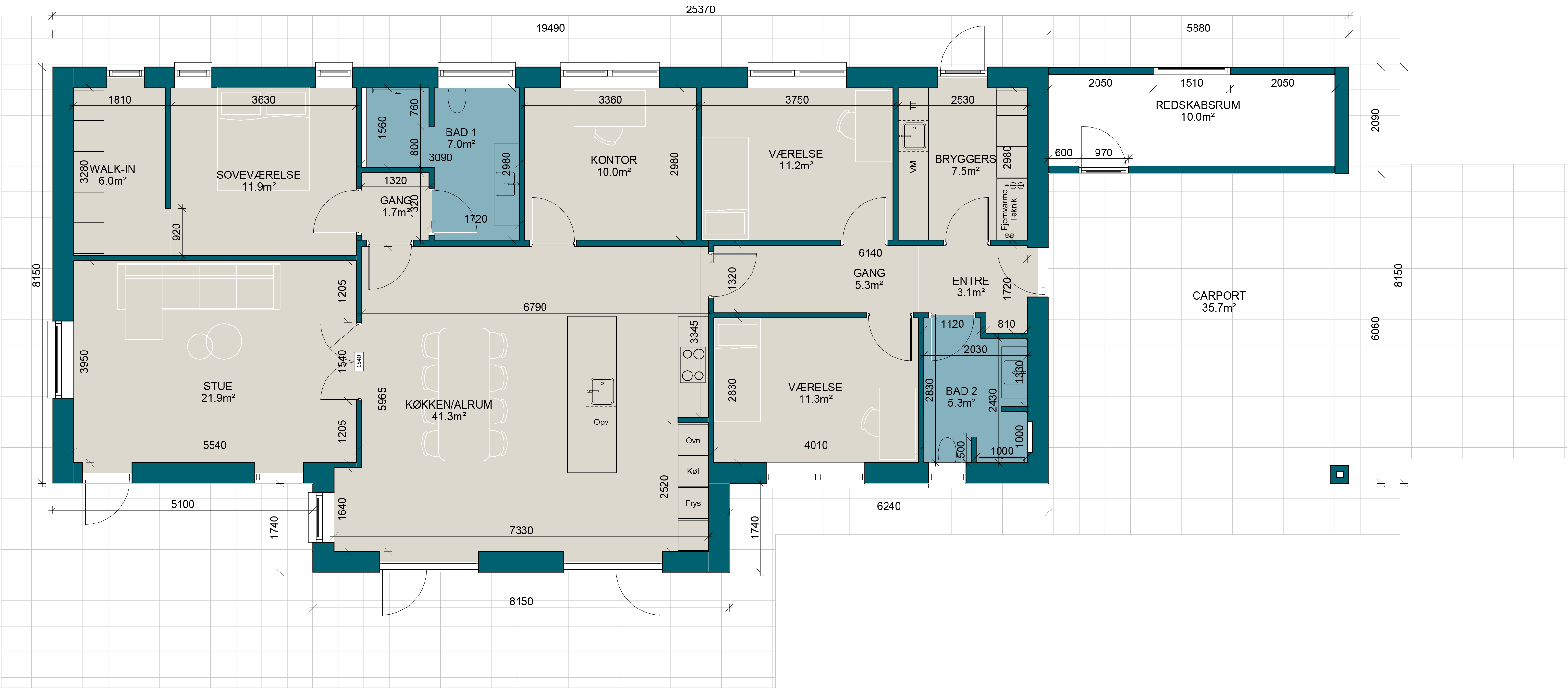
Fra den store carport træder du ind i entreen og møder et lyst og venligt hjem.

I den første afdeling af huset ligger to gode værelser, et badeværelse og et bryggers med egen indgang. Her kan husets børn/teenagere have det lidt for sig selv og spille musik, uden at det generer i resten af huset. 

For enden af gangen ligger husets store opholdsrum. Her får du en dejlig rumfornemmelse takket være skrålofter med indbyggede spots og store vinduespartier med skrå overpartier, som sender lyset langt ind i rummet. På de mere end 40 kvm er der god plads til både madlavning, samvær og selskaber. Den indbyggede alkove giver en ekstra siddeplads, hvor du kan hygge dig med en god bog. Franske døre leder ind til stuen, hvorfra der er udgang til en sydvestvendt terrasse med masser af sol samt en stor, grøn plæne.

Husets forældreafdeling ligger bagerst i huset - privat og afsondret - med soveværelse, bred walk-in med skabe fra gulv til loft og et stort badeværelse med en rummelig bruseniche. 

Boligen er indrettet med lyse og vedligeholdelseslette materialer hele vejen igennem, gode opbevaringsmuligheder og akustiklofter. Der er gulvvarme i hele huset samt ventilation med varmegenvinding, som bidrager til et sundt indeklima og en lav energiregning. 

Huset er til salg for 4.150.000 kr.

Fakta

  • Forskudt vinkelhus
  • Sadeltag med 30 cm udhæng
  • Boligareal:  173  kvm
  • Grund:  1022  kvm
  • Carport:  36  kvm
  • Mursten: EW2546 Taurus
  • Tagbeklædning: Sorte betontagsten
  • Vinduer: Rationel Auraplus Premium træ/alu
  • Vægge: Filt
  • Gulve: Akustik Designkork Western Oak m. TimberPro
  • Walk-in
  • Opvarmning: Fjernvarme

16 billeder

Oplev vores udstillingshuse i weekenden

Og find ud af, hvilke løsninger du ikke kan leve uden i dit næste hus.

Calculator App Streamline Icon: https://streamlinehq.com

Hvad koster det at bygge et nyt hus?

Dit nye hus behøver ikke at koste en bondegård. Hvis du gerne vil have et fingerpeg om prisen, er vores priseksempler en god hjælp. 

Pencil Streamline Icon: https://streamlinehq.com

Sådan tegner vi det rigtige hus til jer

Vi bygger huse hver dag og har gjort det i årevis. Al den erfaring og viden om best practice bringer vi i spil, når vi tegner dit hus. 

Skal vi mødes til en snak om mulighederne?

Så book et uforpligtende møde med en af vores byggerådgivere. Du behøver ikke have styr på det hele endnu. Vi brygger en kop kaffe, taler om jeres ønsker og finder ud af, hvordan Milton kan hjælpe jer med husdrømmen.